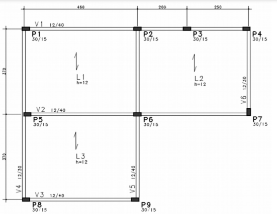
Analise os pórticos planos mostrados na figura a seguir.

Com isso, determine as reações de apoio e os diagramas de esforços solicitantes para o primeiro pórtico.
Em seguida, produza um texto contendo:
(A) a comparação entre os dois pórticos quanto à estaticidade e estabilidade;
(B) a descrição sumária do método que você usaria para realizar a análise estrutural do segundo pórtico.
CONTEÚDO EXCLUSIVO
Confira nossos planos especiais de assinatura e desbloqueie agora!
Ops! Esta questão ainda não tem resolução em texto.
Ops! Esta questão ainda não tem resolução em vídeo.
Questões Relacionadas
A figura a seguir representa um esquema de um cabo de aço suspenso por dois apoios nivelados e que deverá suportar o peso de um equipamento, representado pela força vertical F. A fixação do cabo nos apoios A e B será feita por meio de pinos de aço ancorados em duas estruturas de concreto. Admite-se que o cabo é inextensível e que o seu peso próprio pode ser desprezado.

Com os dados da figura, qual é o valor da força de arrancamento nos pinos localizados nos apoios A e B?
Sabendo que o aço do cabo possui tensão admissível de 150 kN/cm2, qual deve ser a área mínima da seção transversal do cabo para que ele suporte o equipamento com um nível de segurança igual a quatro?




