a. Descrever a principal característica das etapas relativas às duas primeiras fases do trabalho (concepção e definição de produto), quais sejam: Levantamento de Dados, Programa de Necessidades, Estudo Preliminar e Projeto Legal.
b. Explicar, através de texto e croquis ilustrativos, a diferença entre Área de Aproximação, Área de Descanso e Área de Transferência, para fins de acessibilidade e desenho universal.
c. Descrever a sequência de comandos, no programa AutoCAD, necessária à realização do desenho de um módulo de referência (projeção de 0,80 × 1,20 m no piso ocupado por uma pessoa utilizando cadeira de rodas, motorizada ou não), devidamente cotado, considerando a preexistência de bloco representando a pessoa em cadeira de rodas, em arquivo externo, e de estilo de dimensionamento, no próprio arquivo, ambos já corretamente ajustados à escala desejada.
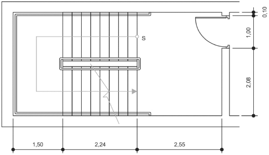
d. Indicar, em escala aproximada, sobre o desenho apresentado abaixo, − que corresponde a uma das escadas existentes no edifício e que será utilizada como saída de emergência e rota de fuga −, três diferentes elementos que deverão ser obrigatoriamente previstos e instalados para a sua correta utilização.

Ops! Esta questão ainda não tem padrão de resposta.
Ops! Esta questão ainda não tem resolução em texto.
Ops! Esta questão ainda não tem resolução em vídeo.




